Strasse: N/A
Stadt: Oberursel
PLZ: 61440
Baujahr: 1927
Objektzustand: renovierungsbedürftig
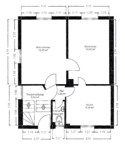
Wohnfläche (qm): 95
Badezimmer: 2 + 2 Gäste WCs
Etage: 1
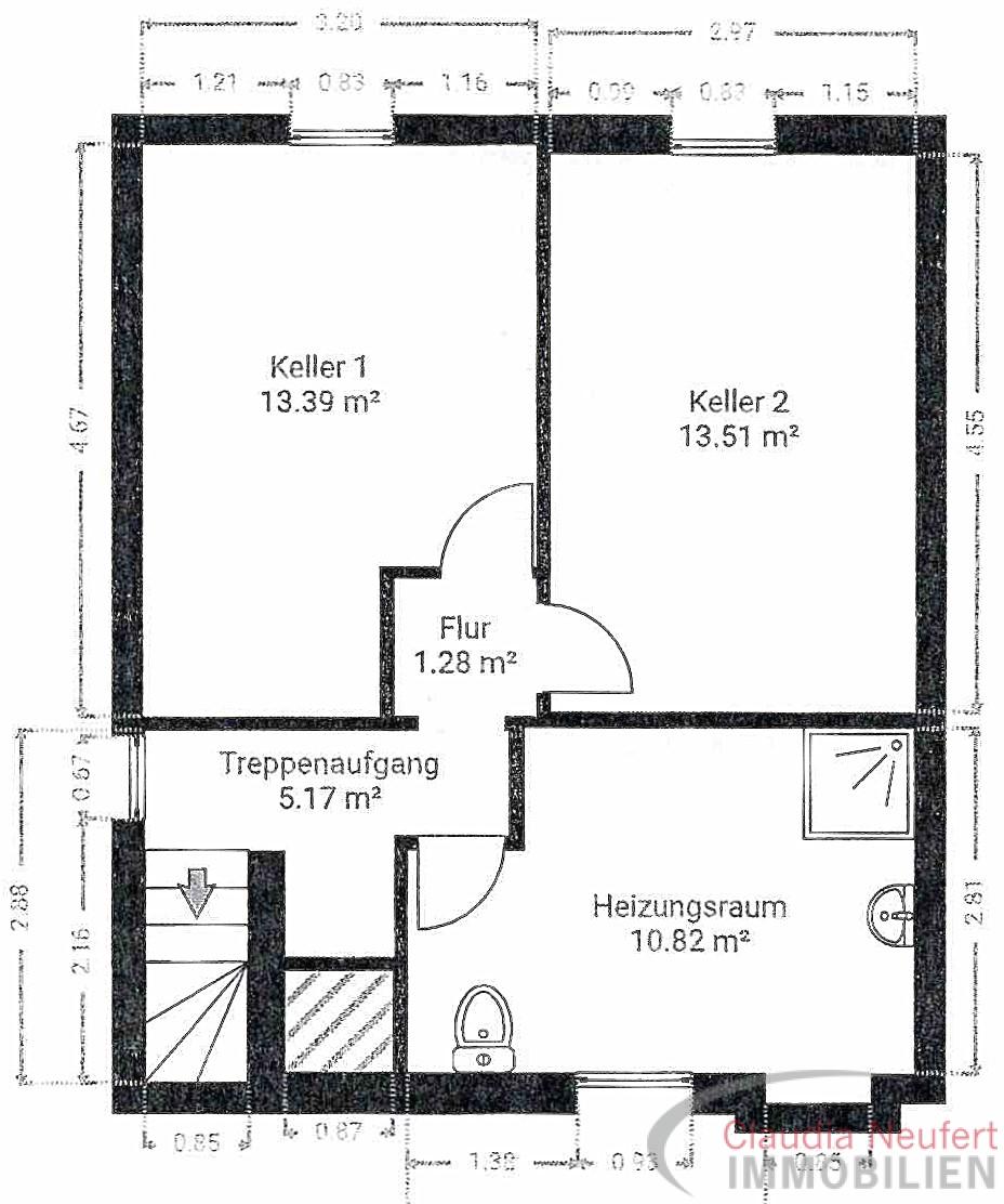
Keller: 2 Kellerräume
Balkon/Terrasse: Innenhof
Garage/Stellplatz: Garage
Garten: Gartengrundstück
Maklerprovision: 2,98% vom Kaufpreis inkl. gesetzl. MwSt.
Weitere Eigenschaften:
Bodenbeläge: Kunststoffböden; Laminat, Dachboden Stehhöhe (Ausbaufähig), Fenster: Kunststofffenster im EG dreifach verglast (Einbau 2016); OG: doppelt verglast (ca. 1986), Garage, Garten, Gastherme BJ. 2010, großer Innenhof, neuwertige Massivholztreppe, UG: zwei Abstellräume, zwei Tageslichtbadezimmer; zwei Gäste WCs
Interessiert? Bitte nutzen Sie unser Kontaktformular!